



Z43WF無導流孔平板閘閥
Z43WF無導流孔平板閘閥適用于天然氣,石油,化工,環保,城市管道,燃氣管線等輸送管線,放空系統和汽儲存裝置上,用作啟閉設備。適用于天然氣開采和凈化的長輸管線。
| 產品名稱: | 無導流孔平板閘閥 | 產品型號: | Z43WF、Z543WF、Z643WF、Z943WF |
| 公稱通徑: | DN50~DN1000 | 結構形式: | 單閘板、雙閘板 |
| 公稱壓力: | 1.6Mpa~6.4Mpa | 連接方式: | 法蘭、對夾 |
| 適用溫度: | -20ºC~+150ºC~425ºC | 驅動方式: | 手動、鏈輪、傘齒輪、電動、氣動、液動 |
| 閥體材質: | 鑄鋼、不銹鋼 | 制造標準: | 國標GB、德國DIN、美國API、ANSI |
| 適用介質: | 水、油、蒸汽、天然氣、污水等 | 生產廠家: | 上海凱利科閥門有限公司 |
| 設計規范 | 結構長度 | 連接法蘭 | 試驗與檢驗 | 壓力-溫度 | 產品標識 |
| JB/T5298 | JB/T5298 | JB/79 | JB/T5298 | GB9131 | GB/T12220 |
| API6D | API6D | ANSI-16.5 | API6D | ANSI B16.34 | MSS SP-25 |
| 設計等級 | 常溫下試驗壓力(MPa) | 適用溫度℃ | 適用介質 | |||||||
| 殼體 | 左密封 | 左密封 | 低壓密封 | “G”型 | “D”型 | 普通型 | “抗硫”型 | “基本”型 | ||
| 公稱壓力PN(MPa) | 1.6 | 2.4 | 1.76 | 1.76 | 0.6 | -29~50 | -45~21 | -2~121 | H2S和CO2總含量大于500mg/m2的介質 | 石油天然氣、水等 |
| 2.5 | 3.75 | 2.75 | 2.75 | 0.6 | ||||||
| 4.0 | 6.0 | 4.4 | 4.4 | 0.6 | ||||||
| 6.4 | 9.6 | 7.04 | 7.04 | 0.6 | ||||||
| 磅級Lb | 150 | 3.0 | 2.2 | 2.2 | 0.6 | |||||
| 300 | 7.7 | 5.6 | 5.6 | 0.6 | ||||||
| 閥門/閥蓋 | WCB | WC6 | A352-LCB | A351-CF8M |
| 閘板 | 2Cr13+ENP | 20CrMoV+STL | ANSO410+ENP | ANSI316+ENP |
| 閥桿 | 2Cr13 | 2Cr13 | A182-A6a | A182-A316S |
| 閥座 | 25+PTFE | 20CrMoV+STL | A105+PTFE | A182-F316+PTFE |
| 填料 | NBR/FPM | 柔性石墨/Flexible Graphite | 聚四氟乙烯/PTFE+FPM | |
| 墊片 | - | 墊片 | - | |
| 螺栓 | 35 | 螺栓 | 35 | |
| 適用介質 | 水、油口、蒸汽 | 適用介質 | 水、油口、蒸汽 | |
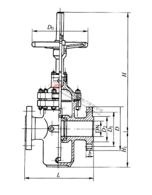
| 1.6MPa | DN | L | D | D1 | D2 | Do | f | b | H | H1 | n-Φd |
|
凸面法法 RF (K)Z43WF-16C (K)Z543WF-16C (K)Z643WF-16C (K)Z943WF-16C |
50 | 178 | 160 | 125 | 100 | 250 | 3 | 16 | 584 | 80 | 4-Φ18 |
| 65 | 190 | 180 | 145 | 120 | 250 | 3 | 18 | 634 | 95 | 4-Φ18 | |
| 80 | 203 | 195 | 160 | 135 | 250 | 3 | 20 | 688 | 100 | 8-Φ18 | |
| 100 | 229 | 215 | 181 | 155 | 300 | 3 | 20 | 863 | 114 | 8-Φ18 | |
| 125 | 254 | 245 | 210 | 185 | 350 | 3 | 22 | 940 | 132 | 8-Φ18 | |
| 150 | 267 | 280 | 240 | 210 | 350 | 3 | 24 | 1030 | 150 | 8-Φ23 | |
| 200 | 292 | 335 | 295 | 265 | 350 | 3 | 26 | 1277 | 168 | 12-Φ23 | |
| 250 | 330 | 405 | 355 | 320 | 400 | 3 | 30 | 1491 | 203 | 12-Φ25 | |
| 300 | 356 | 460 | 410 | 375 | 450 | 4 | 30 | 1701 | 237 | 12-Φ25 | |
| 350 | 381 | 520 | 470 | 435 | 500 | 4 | 34 | 1875 | 265 | 16-Φ30 | |
| 400 | 406 | 580 | 525 | 485 | 305 | 4 | 36 | 2180 | 300 | 16-Φ30 | |
| 450 | 432 | 640 | 585 | 545 | 305 | 4 | 40 | 2440 | 325 | 20-Φ34 | |
| 500 | 457 | 705 | 650 | 608 | 305 | 4 | 44 | 2860 | 360 | 20-Φ41 | |
| 600 | 508 | 840 | 770 | 718 | 305 | 5 | 48 | 3450 | 425 | 20-Φ41 | |
| 700 | 610 | 910 | 840 | 788 | 305 | 5 | 50 | 3960 | 460 | 24-Φ41 | |
| 800 | 660 | 1020 | 950 | 898 | 305 | 5 | 52 | 4550 | 512 | 24-Φ41 | |
| 900 | 711 | 1120 | 1050 | 998 | 250 | 5 | 54 | 5250 | 565 | 28-Φ48 | |
| 1000 | 811 | 1250 | 1170 | 1110 | 250 | 5 | 56 | 5870 | 630 | 28-Φ18 | |
| 2.5MPa | 50 | 178 | 160 | 125 | 100 | 250 | 3 | 20 | 584 | 80 | 4-Φ18 |
|
凸面法法 RF (K)Z43WF-25 (K)Z543WF-25 (K)Z643WF-25 (K)Z943WF-25 |
65 | 190 | 180 | 145 | 120 | 300 | 3 | 22 | 634 | 95 | 8-Φ18 |
| 80 | 203 | 195 | 160 | 135 | 350 | 3 | 22, | 388 | 100 | 8-Φ18 | |
| 100 | 229 | 230 | 190 | 160 | 350 | 3 | 24 | 863 | 114 | 8-Φ23 | |
| 125 | 254 | 270 | 220 | 188, | 350 | 3 | 28 | 940 | 132 | 8-Φ25 | |
| 150 | 267 | 300 | 250 | 218 | 400 | 3 | 30 | 1030 | 150 | 8-Φ25 | |
| 200 | 292 | 360 | 310 | 278 | 450 | 3 | 34 | 1277 | 168 | 12-Φ25 | |
| 250 | 330 | 425 | 370 | 332 | 500 | 3 | 36 | 1491 | 203 | 12-Φ30 | |
| 300 | 356 | 485 | 430 | 390 | 305 | 4 | 40 | 1701 | 237 | 16-Φ30 | |
| 350 | 381 | 550 | 490 | 448 | 305 | 4 | 44 | 1875 | 265 | 16-Φ34 | |
| 400 | 406 | 610 | 550 | 505 | 305 | 4 | 48 | 2180 | 300 | 16-Φ34 | |
| 450 | 432 | 660 | 600 | 555 | 305 | 4 | 50 | 2440 | 325 | 20-Φ34 | |
| 500 | 457 | 730 | 660 | 610 | 305 | 4 | 52 | 2860 | 360 | 20-Φ41 | |
| 600 | 508 | 840 | 770 | 718 | 305 | 5 | 56 | 3450 | 425 | 20-Φ41 | |
| 700 | 610 | 955 | 875 | 815 | 305 | 5 | 60 | 3960 | 460 | 24-Φ48 | |
| 800 | 660 | 1070 | 990 | 930 | 305 | 5 | 64 | 4550 | 512 | 24-Φ48 | |
| 900 | 711 | 1180 | 1090 | 1025 | - | 5 | 66 | 5250 | 595 | 28-Φ54 | |
| 1000 | 811 | 1305 | 1210 | 1140 | - | 5 | 68 | 5870 | 660 | 28-Φ48 |
聲明:【Z43WF無導流孔平板閘閥】規格型號、結構尺寸由上海凱利科閥門有限公司提供,如何選擇適用的Z43WF無導流孔平板閘閥產品,使之在工藝控制中安全可靠、經濟適用,可致電我司銷售部門及技術部門,我們將在最短的時間內為您解答! |